В декабре 2021 года к команде верфи Товарищества поморского судостроения присоединился Михаил Плеханов – главный строитель парусника «Полтава», главный инженер фрегата «Штандарт», а теперь и главный инженер-проектировщик «Поморской шхуны».
Вместе с нашим главным инженером-конструктором Михаилом Крупениным (неусыпно находящимся возле шхуны в Архангельске) и руководителем проекта Евгением Шкарубой, Михаил Плеханов решает инженерные задачи проекта удалённо, из Петербурга, и иногда приезжает навестить нас. В конце января Михаил снова побывал в Архангельске (говорят, что ночью прямо с порога забрался в шхуну, даже чаю с дороги не выпил) – чтобы увидеть вживую, что и как мы построили по их с Мишей чертежам.
Мы не упустили шанса поговорить с Михаилом Плехановым о том, что он увидел на верфи спустя полтора года после прошлого визита и какие задачи наши инженеры решают сейчас.
Итак, конец января 2024 года, актуальные новости поморского шхуностроения. Рассказывает главный инженер-проектировщик проекта Михаил Плеханов.
Что изменилось за полтора года
В прошлый раз я был здесь летом 2022 года, на Поморской карбасной регате. Получается, полтора года назад. За это время вся кормовая оконечность судна оформлена, перед нами прекрасная транцевая рама, дейдвуд, старнпост… Когда-то мы всё это проработали, и вот, оно родилось. Смотрите, как это работает: инженеру-проектировщику интересно придумать всё в своей голове – и как только он всё придумал, ему становится неинтересно. Дальше ему будет интересно только увидеть всё это готовым, вживую.

Так и здесь: мы с Мишей всё придумали, я нарисовал ему рисуночек, он мне показал 3D-модель, в моей голове всё сложилось. Через полтора года я приезжаю – и вот, оно, построено, класс! Я не видел всех этих мучений: где ставить крепёж и как собирать клей, и что клей не встал, и как нужно острогать досочку… Я видел только чистый, прекрасный результат. Это же приятно!







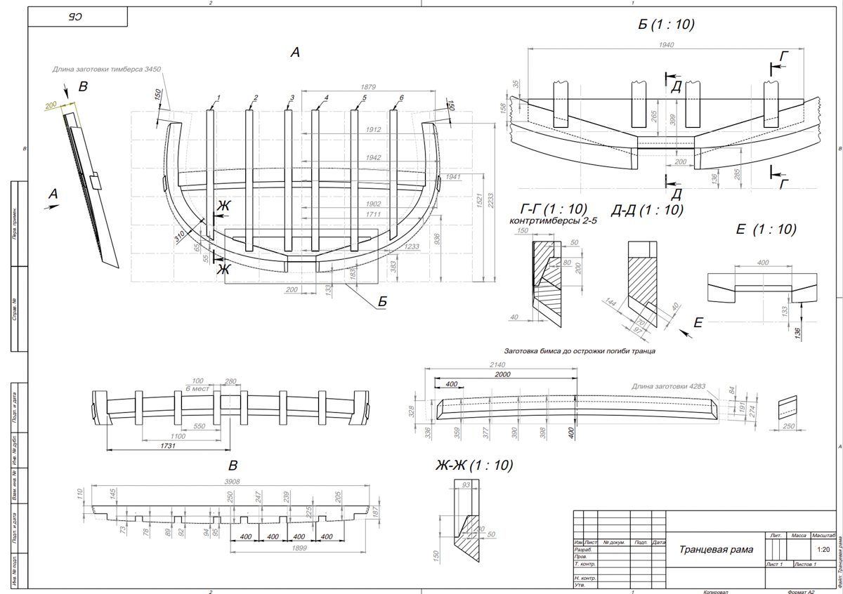
Шхуна на конец января 2024 года [три года с момента закладки киля]
Что я увидел на верфи сейчас, текущее состояние корпуса: полностью собрана закладка судна: киль, фор и ахтерштевень установлены в проектное положение и закреплены друг с другом. На закладку установлен выклеенный из лиственницы кормовой дейдвуд; полностью выполнен и установлен набор кормовой оконечности: горн-тимберсы, транцевые кницы, транцевая рама с вин-транцем и контр-тимберсами.

Почти завершен поперечный набор: на киль установлены 40 из 44 шпангоутов (четыре носовых шпангоута в процессе изготовления), топы шпангоутов надёжно закреплены временными шергенями. Выклеен, уложен на место (поверх флор-тимберсов) и частично закреплен прекрасный кильсон, начата работа по шлихтовке внутренних поверхностей шпангоутов для установки продольных связей: лимбербордова бруса, днищевого и бортового стрингеров, подбалочных брусьев – клямса и подклямса.


Самое главное и важное, что строительство движется вперед, и строители не позволяют себе экономию на качестве: плотность подгонки деталей, качество склейки, древесины, крепежа не вызывают сомнений.
Актуальные задачи
Сейчас мы прорабатываем конструкцию носовой оконечности шхуны. Когда-то мы проработали кормовую часть лодки, теперь нам нужно родить такой же концепт её носовой части.


Здесь много элементов, взаимно влияющих друг на друга. Начинаем с брештуков, брештуки цепляются за продольные связи – за днищевой и бортовой стрингеры, клямс и подклямс. Один брештук устанавливается под палубой, второй ниже, а может быть, там их будет даже два. Там же должен стоять битенг, который упирается в бушприт, но от битенга мы, скорее всего, откажемся по другим соображениям. Также в районе первого поворотного шпангоута должна быть переборка. То, что этот шпангоут решено сделать именно поворотным, тоже вносит свою сложность.

Дальше нужно сделать доступ в этот носовой отсек, а параллельно с этим мы обсуждаем темы убирающегося бушприта и то, как организовать осушение и водоотлив корпуса.



Вот такую громаду мы сейчас пытаемся продумать.
Когда появляется корпус, людям легче поверить в успех
Конечно, всё это вдохновляет. Для меня это такая отдушина, мне приятно этим заниматься. Я ведь работаю с людьми, которые не хотят двигаться вперёд, а хотят писать отчёты. Я строю какие-то безумные планы, миллиону людей рассказываю о том, как эти планы прекрасны, а движение получается крошечное…
А здесь наоборот, здесь движение очень большое.

Может быть, не хватает формального, принятого в современном мире процесса планирования и управления… да и слава Богу, потому что слишком жёсткая буква в какой-то момент может убить проект.
Без планирования тоже никак не обойтись, но его можно делать на разном уровне, и оно в любом случае опирается на ресурс. Когда ресурса мало, можно планировать, исходя не из технологии, а из имеющегося ресурса, как это происходит здесь.
Условно говоря, сегодня есть средства, чтобы заниматься проектированием. Миша [Крупенин] свободен, он не занят миллионом других грантов, чтобы где-то добыть денег, которые можно вложить в корабль – и он проектирует шхуну. Это нормально.
Замечательно, что есть Артём, есть мастерская, есть деревяшка, есть инструмент, и каждый день шхуна чуть-чуть прирастает. Пока это движение есть, всё прекрасно.
Когда появляется корпус, людям гораздо проще поверить в успех всего проекта.

Так же было, когда мы строили Полтаву. Люди приходят, ты их встречаешь, рассказываешь им про парусник, показываешь: вот, брёвна приехали, вот пилорама, туда-сюда. А потом ты открываешь двери, заводишь их в ангар, и они такие: «Ах!»
Я уверен, что здесь люди испытывают такие же эмоции – ведь они видят этот прекрасный результат своими глазами.
Записала Катя Суворова
